JAプレアホールみやき しらゆりホール(みやき町)

JAプレアホールみやき しらゆりホール
名称 JAプレアホールみやき しらゆりホール
住所 佐賀県三養基郡みやき町大字中津隈630-3MAP
TEL 0942-89-3715

フォトギャラリー

交通アクセス

長崎自動車道東脊振ICより約13分
佐賀空港より約45分
公共交通機関 JR中原駅より
タクシー(約11分)

JR吉野ヶ里駅より
タクシー(約12分)

佐賀空港より
リムジンタクシー外部サイトへ移動します(約50分)

施設概要

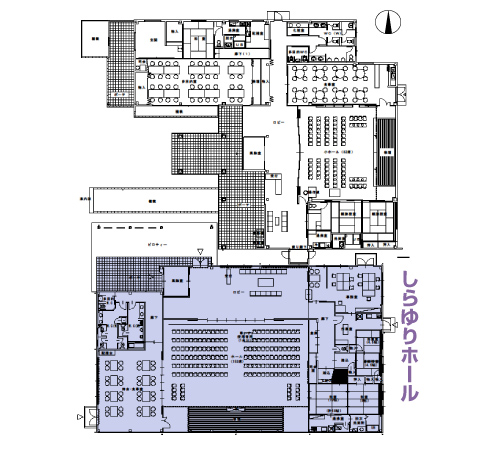
館内MAP

JAプレアホールみやき しらゆりホール
ホール 収容人数 100名~300名
遺族控室
  • 和室(8畳)
  • 和室(10畳)
  • 浴室
  • 給湯室
導師控室 1室
駐車場 150台
その他設備 待合・食事室

周辺施設情報

コンビニエンスストア 徒歩 約5分
ドラッグストア 車 約8分
ページトップへ
Copyright © JA Ceremony SAGA All Rights Reserved.